
1. Design Vision: Rooted in Heritage, Built for the Future
NAMA HOUSE is not just a residence; it is a reinterpretation of Emirati living for the modern era. Inspired by the Arabic concept of "Namā" (Growth), this architectural masterpiece creates a balance between permanence and change. It is designed to be a "living system" that respects your cultural roots while embracing the future of luxury living.
"A home that doesn't just respond to its environment; it evolves with it."


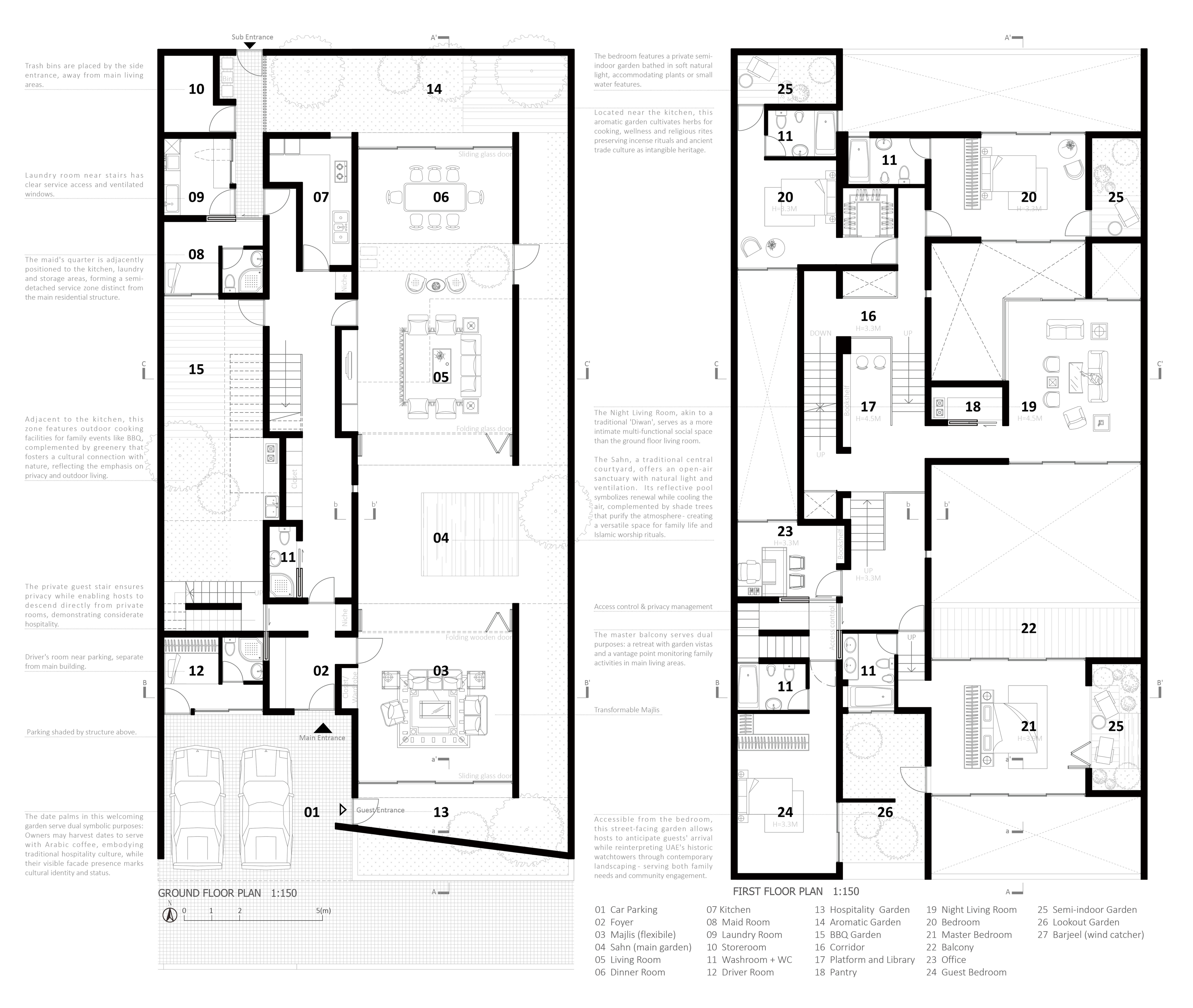
2. The Modern Majlis & Private Sanctuary (Layout & Privacy)
We understand that privacy and hospitality are the cornerstones of an Arab home.
· The Dual-Mode Majlis: We have reinvented the traditional Majlis with a smart, transformable design. It transitions effortlessly from a formal guest reception area (traditional seating) to an open family activity zone.


· The Central Sahn (Courtyard): At the heart of the villa lies a serene Sahn. This internal courtyard connects indoor and outdoor living, providing total privacy, natural light, and a cool retreat for the family away from the public eye.
· Intelligent Zoning: A centralized service core optimizes the flow, ensuring that service utilities never intrude on your living spaces.

3. Adaptive Living: A Home for Every Stage of Life
Your family grows, and your home should too. NAMA HOUSE features a revolutionary "Adaptive Living" system:
· Flexible Spaces: Using advanced sliding partitions and modular storage, rooms can be reconfigured in just 7 minutes.
· Multi-Generational Ready: Whether accommodating extended family, guests, or changing lifestyles, the house enables 5+ living mode transitions without the need for structural renovations.

4. Sustainable Luxury & Iconic Aesthetics
Stand out with a facade that merges art with advanced technology.
· Bio-Climatic Comfort: Inspired by the traditional Barjeel, our modern wind-catcher system and double-height ventilation ensure a naturally cool interior tailored to the Gulf climate.
· Innovative Materiality: The facade features 3D-printed date palm Mashrabiya screens. This world-first innovation is not only visually stunning but also reduces carbon footprint by 80% and weight by 60%, creating a play of light and shadow that honors Islamic geometric patterns.
Self-Cooling Walls: We utilize coral-inspired porous concrete that mimics marine ecology to lower wall temperatures by 4-6°C naturally.



浙公网安备33010602012207号